logo
客户案例
全球工程机械液压领军企业恒立液压利用SIPM/PLM企业级产品数据集成
企业背景
       恒立液压是中国液压行业大型的企业集团。公司于1990年成立,致力于液压行业产品的技术创新,为全球客户提供高效,可靠的液压传动与控制解决方案。
       恒立液压经过30年的专注与创新,生产规模和技术水平已跻身于世界液压领域前列,已成为中国液压行业广为认同的标杆企业。公司总部位于中国常州,并在上海、德国柏林、美国芝加哥、日本东京、印度分别建有4个液压研发中心和9个生产制造基地。
       恒立液压自并购上海立新液压,建立高精密铸造和泵阀工厂,并购德国哈威茵莱(InLine)液压后,拥有了研发制造更为高端的液压传动与控制产品的实力。可提供高压油缸、液压泵阀、马达、精密铸件、气动元件和全套的液压系统。主要市场涵盖20多个国家和地区,涉及工程建筑机械、船舶、能源开采、隧道机械、冶金、工业制造等众多应用领域。
       恒立液压致力于为客户提供高效的液压技术解决方案和产品,与客户保持强有力的伙伴关系。为社会的可持续发展,建设绿色城市和美好未来做出更多贡献。
项目目标
       SIPM/PLM项目实施,达成以下目标:
       通过PLM的实施,规范产品开发流程;规范输入、输出、评审等过程文件的管理,(所有文件完整,归档条理,便于查阅);保证开发各过程可记录,可追踪,强化项目管理能力。
       通过集成产品设计、工艺设计的协同,建立以BOM为纽带的物料、模型、图纸、文件等设计及工艺数据相关联的产品数据模型,方便用户对数据的上传、下载、查询、引用、修改、比较等方面的操作;
       打通整个企业信息流,实现和SAP/OA/SRM/MES/快速设计系统等相关系统集成
       充分利用网络的快捷和可追溯性,逐步建立电子通知、报批及审核机制,避免以往人工的出错、遗忘,为实现无纸化办公铺平道路;
       规范文件标准-----提升与产品相关的图纸、检验标准、产品说明文档、技术文档、项目文档、编码规则的规范统一管理,建立文档管理规范
        知识库共享-----借助PLM系统的知识管理平台,积累设计经验,逐步建立一个科学、完善的知识库,提高研发、工艺、项目管理水平。
项目管理
        产品批次以项目形式进行管理,固化了体系流程,提升项目管理标准化,实现合同进度整体监控。

项目流程

固化流程
任务管理
       针对恒立特殊业务需求,销售订单下新增下达任务模块,可对销售订单进行任务下达;OA任务承接SAP的OA方案信息,由组长在PLM系统中下达任务,过程中可查看OA附件,PLM系统任务确认后自动提交OA流程,并将对应方案文件信息传输OA。

长周期采购管理

长周期采购业务流程
       订单信息来源于SAP, PLM系统中创建长周期BOM,并传输SAP。


长周期采购BOM传输SAP
销售订单信息自动分类
          自动分类:销售订单第一级按工厂,二级按设计部门,三级按照任务下达及完成状态进行划分。
       销售订单与任务、技术文件件进行关联,支持正反向查找,能够快速有效的进行查询。
产品属性管理
       针对恒立液压产品,制定相应产品属性,部分属性可获取零部件属性信息。提高产品的规范管理。

产品多肽属性(铸造)
产品失效案例管理
       产品关联失效案例,可对产品失效进行跟踪分析。

产品_失效案例分析
产品配置清单管理
       产品BOM通过配置清单进管理,可直接浏览BOM。产品配置清单新增“核价状态”,多次核价,自动将之前配置清单核价状态改为失效。
 
产品文件管理
       产品管理的技术协议及设计说明类文件与产品进行关联,可从本地或者通过模板进行新增;
建立恒立液压统一的编码体系
      使用SIPM/PLM系统编码管理模块实现恒立集团产品研发过程中产品、项目、技术文件、工艺路线等编码规则的固化并方便工程师的调用,提升获取编码的效率,提高企业编码管理的规范化和标准化。

统一编码体系

编码调用
三维设计软件集成
       在三维设计软件设计后,其产生的图纸通过接口上传到PLM系统,图纸中包含的物料信息(物料编码、物料名称、材质、规格型号、重量等)、BOM结构等数据将通过接口被PLM系统提取到数据库中,而图纸自身会被保存到文件服务器中,并与对应的零部件等信息进行关联,PLM端可以对模型或者图纸进行在线浏览。
工艺管理
       在设计BOM上进行工艺设计,可生成工艺文件,结构化工艺数据,便于上下游数据传递。
工艺路线:新建/添加工艺路线,调用标准工序库、设备库、工作中心库、采购信息记录库

创建工艺路线


调用库数据

输出工艺过程卡
材料定额:调用已有的材料库对物料进行材料定额计算,保证数据源的唯一性,准确性,为后续数据传输提供有效数据支撑。
PLM与SAP集成:
       物料主数据申请及业务视图维护:所有物料申请由PLM端发起,区分工厂,通过接口向SAP申请编码。编码返回成功,PLM自动生成业务视图,由业务部门进行维护,完成后传输SAP。

申请流程

主数据/业务视图属性集合
物料主数据属性维护及工厂添加

辅助单位添加

业务视图维护
标准BOM传输SAP
       设计工程师通过三维设计软件接口上传BOM到系统后,由工艺工程师搭建材料定额信息,并将BOM数据传输SAP,通过日志查看传输状况;

工艺路线传输SAP
      工艺人员在BOM中维护工艺路线,进行组件分配,反冲方式指定,最终将工艺信息直接传输SAP系统。
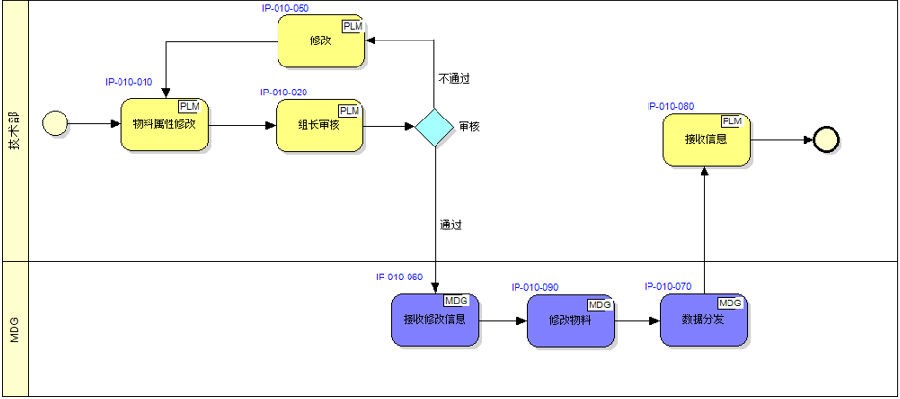
变更管理
      物料主数据/业务视图变更:主数据及业务视图的变更由PLM端发起,在PLM系统内通过流程签审,最终传输SAP。

主数据变更流程

业务视图变更流程
       BOM变更:BOM变更时需要生成变更通知单报表文件,并考虑是否冻结生产订单,需要冻结订单的,需要检出物料,通过接口查询SAP生产订单,并进行冻结。
BOM变更业务流程

变更通知单报表生成
       工艺变更:包含工艺路线变更、材料定额变更、材料用量变更,变更后需要将数据重新传输SAP。
       变更可追溯:每一次变更系统都会有变更记录,BOM有BOM差异比较,文件有文件的历史版本,可供查阅与下载。
PDF工厂
       实现对三维工程图及WORD、EXCEL文件电子化签名,优化传统签审流程,降低企业成本。
总结
       1,项目管理--按体系全流程进行项目策划及任务执行,固化新产品研发、批次管理流程,按项目分解协同,通过任务提醒、项目状态监控、任务监控、计划节点监控等,保证产品研发过程受控,有助于缩短产品开发周期,降低管理成本。
       2,数据管理—建立数据的报批及审核机制,实现产品BOM、图纸、技术文件等产品数据集中规范统一管理,提高产品数据的安全性及查询效率,提升公司产品数据管理水平;
       3,PLM→SAP集成:物料主数据、BOM、工艺路线、长周期采购申请/变更统一由PLM端发起,通过接口传输SAP,电子化传输,提高传输效率及准确性。
      4,PLM→OA:实现方案任务无缝对接。
      5,数据源统一—统一的编码体系,图纸数据与系统数据的互联互动,杜绝数据不一致带来的管理问题,降低公司管理成本,为后续ERP/MES等系统提供强有力的支撑。
      6,变更管理—实现变更管理流程标准化、系统化;保证变更过程节点可控,变更历史可追溯;
      7,知识管理—实现技术数据不断沉淀与积累,形成公司核心的数据资产

 
 转载自思普软件官网https://www.sipm.com.cn
Copyright ©                                      备案号:湘ICP备2023024586号